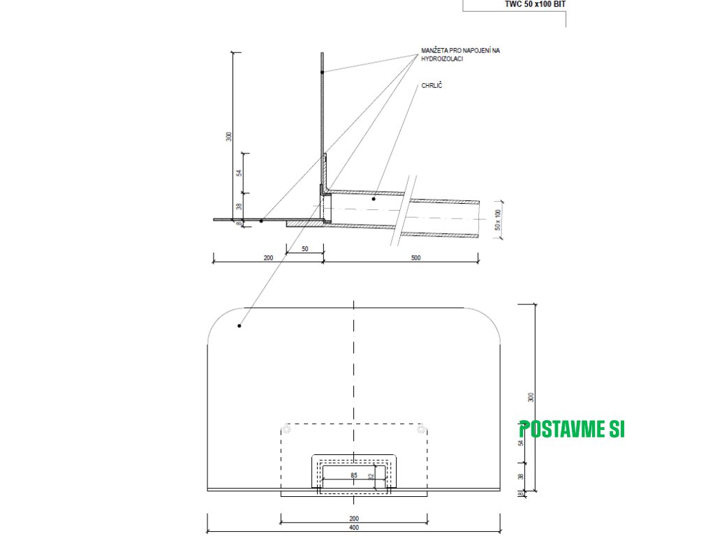
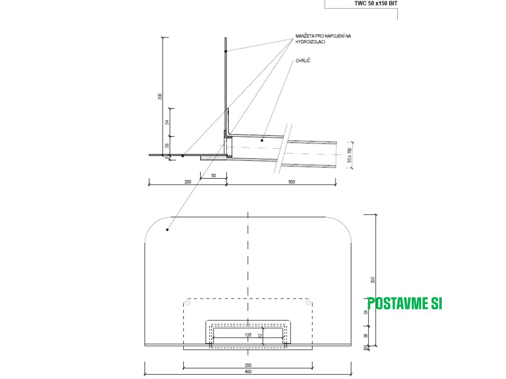
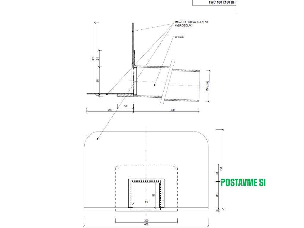
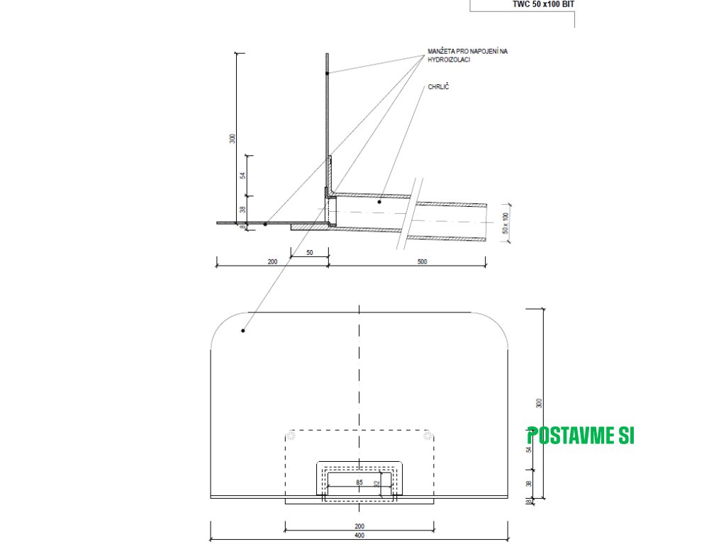
Chrlič hranatý TWC BIT
Kód: 207-B3005 207-B3006 207-B3007 207-B3008 Zvoľte variantPodrobný popis
Chrliče v kombinácii so správne vyspádovaným povrchom zaistia odvod vody z balkónov, priestorov s atikou a podobne. Konštrukcia so zníženou odtokovou hranou. Súčasťou každého chrliča je ochranná a vyberateľná mriežka.
- chrlič je vyrobený z UV stabilného PVC, biela farba
- Integrovaná bitúmenová manžeta (modifikovaný asfaltový pás)
- dĺžka 500 mm, na zákazku možnosť predĺženia až do 1000 mm
Chrlič je možné dodať na objednávku za príplatok aj s manžetou EPDM, TPO, FPO, ECB, EVA, STE.
Dodatočné parametre
| Kategória: | PLOCHÉ STRECHY |
|---|---|
| Materiál: | BIT |
Hodnotenie tovaru
Buďte prvý, kto napíše príspevok k tejto položke.
Diskusia
Buďte prvý, kto napíše príspevok k tejto položke.
